4806 Shreveport BoulevardHouston, TX77028
Due to the health concerns created by Coronavirus we are offering personal 1-1 online video walkthough tours where possible.




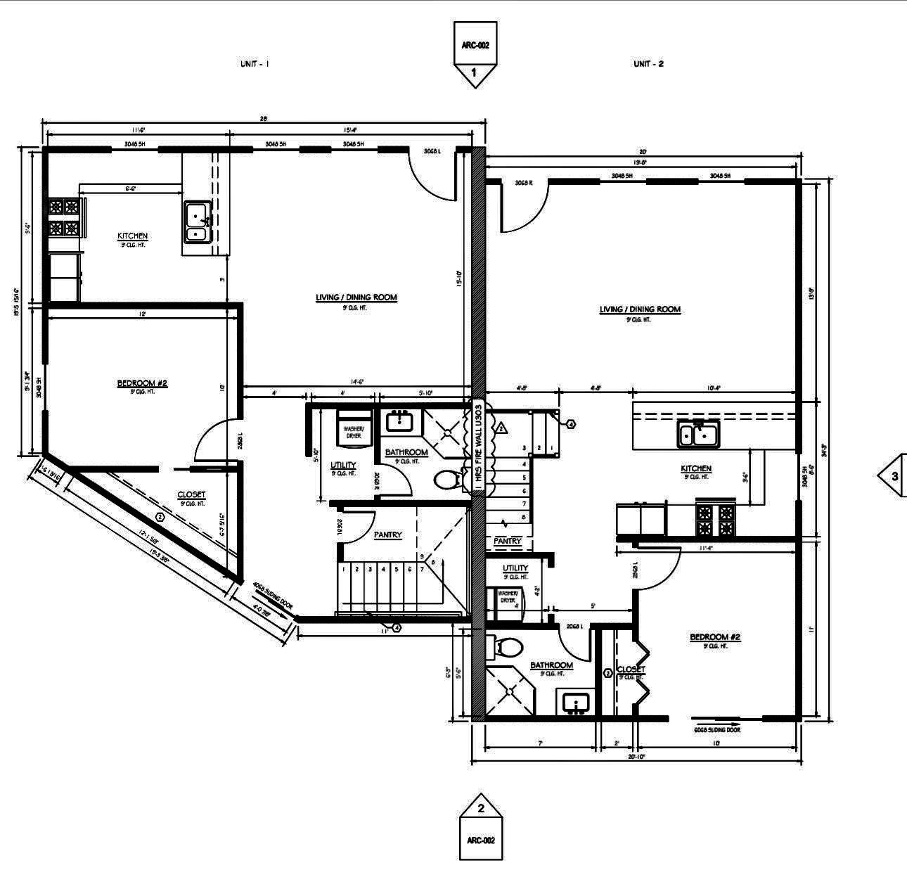
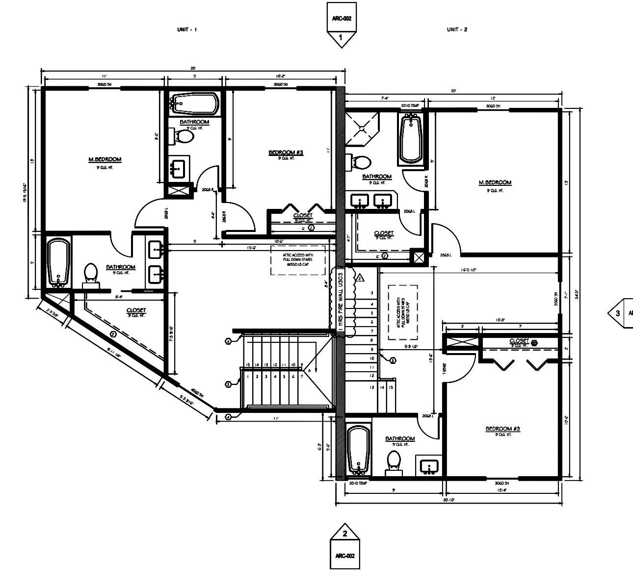
Prime Lot with Approved Modern Duplex Plans – Ready to Build! Excellent opportunity for investors or builders! This lot comes with approved plans for a modern duplex, allowing you to break ground and start construction immediately. Each side of the duplex is thoughtfully designed with 3 bedrooms and 2.5 bathrooms, offering a spacious and functional layout perfect for rental income or multi-family living. unit A features 1,430 SQFT of living space, and Unit B features 1354 SQFt living area, open living areas, and modern design elements. The total combined living area is approximately 2,784 SQFT, making this a strong investment opportunity with great income potential. The modern duplex design offers excellent curb appeal and efficient use of space, making it ideal for today’s rental market. Call today for more details
| 2 days ago | Listing updated with changes from the MLS® | |
| 2 days ago | Listing first seen on site |
IDX information is provided exclusively for consumers’ personal, non-commercial use. It may not be used for any purpose other than to identify prospective properties consumers may be interested in purchasing. This data is deemed reliable but is not guaranteed accurate by the MLS.
Data provided by HAR.com © 2026. All information provided should be independently verified.
Did you know? You can invite friends and family to your search. They can join your search, rate and discuss listings with you.